PROJEKT KONKURSOWY
OPIS
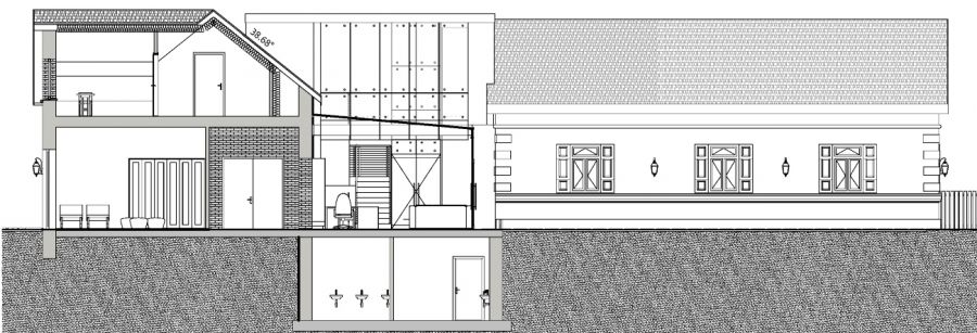
Zgodnie z wytycznymi Organizatora Konkursu, oraz zapisami MPZP*, projektuje się skromną spokojną architekturę wpisaną w zastany kontekst krajobrazu miasta, dawniej okolic wiejskich. Istniejący Dom, jego forma oraz nietypowa lokalizacja na działce, narzuciły formę oraz ostateczny wyraz architektury Muzeum.
Ze względu na układ działki oraz lokalizację starego domu- wejście od strony północno-wschodniej, z wąskiego traktu między domem a ogrodzeniem, co, wg współczesnych zasad, czyta się jako wejście boczne, oraz sugerowaną w założeniach do konkursu lokalizację nowego budynku w głębi działki, za Domem, planuje się zmianę zjazdu na działkę oraz lokalizację głównego wejścia do obiektu w nowej części budynku, centralnie w stosunku do całego założenia.
Budynki - Dom i nowoprojektowany obiekt - połączone zostały częściowo przeszklonym łącznikiem na poziomie umożliwiającym komunikację między dwoma budynkami o prawdopodobnie innych poziomach.
Dotychczasowe wejście do Domu pełniłoby w tej koncepcji rolę wyjścia do „pokoju zewnętrznego”.
Byłaby to strefa zamknięta, dostępna dla gości Muzeum; wygrodzona byłaby tradycyjnym płotkiem w klimacie wiejskim. W sezonie letnim – używana np jako „klasa pod chmurką” do opowieści o dawnych czasach, o życiu 100-200 lat wcześniej, ze studnią, może małym wozem drabiniastym, kołami drabiniastymi, koszykami wiklinowymi, glinianymi garnkami etc.
Byłoby to także ciekawe miejsce dla ekspozycji zewnętrznej, zabezpieczonej dodatkowym wygrodzeniem (zamykane, dwustronne furtki).




















