ARTTU Pracownia Architektury
Pomiń nawigacje
  • start
  • projekty
  • konserwatorskie
  • archiLektura
  • publikacje
  • arttu
  • kontakt
 

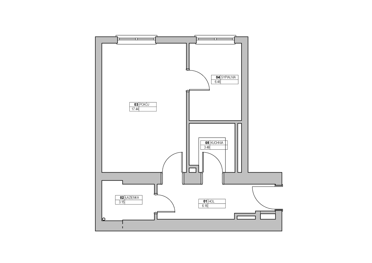
MIESZKANIE ALICJI

Mieszkanie Alicji i Adama, w bloku z lat 50ych XXw.

Powierzchnia 36,69m2 (po przebudowie)

 

powrót

IMG 8619.JPG
IMG 8634.JPG
IMG 8621.JPG
IMG 8622.JPG
IMG 8613.JPG
IMG 8632.JPG
IMG 8631.JPG
IMG 8618.JPG
IMG 8627.JPG
IMG 8623.JPG
IMG 8638.JPG
IMG 8628.JPG
IMG 8615.JPG
IMG 8614.JPG
IMG 8616.JPG
IMG 8617.JPG

PROJEKT

ala wnetrze
PO PRZEBUDOWIE
STAN ISTN
PRZED REMONTEM

o ile nie zaznaczono inaczej wszystkie materiały tu zawarte: © 2001 - 2026 arttu