OPIS
]funkcja
Lokalne centrum ekologiczne wypełni funkcje:
• dydaktyczną - we współpracy z instytucjami i organizacjami działającymi na rzecz edukacji ekologicznej i ochrony środowiska w kraju i za granicą wykonywanie prac wynikających z programu dydaktycznego centrum
• koordynacyjną - koordynacja prac i integracja osób i organizacji zajmujących się działalnością na rzecz zrównoważonego rozwoju miasta oraz edukacją ekologiczną jego mieszkańców
• informacyjną - gromadzenie i przesyłanie informacji, tworzenie baz danych oraz opracowanie i rozpowszechnianie materiałów dydaktycznych, promocja proekologicznych przedsięwzięć władz i organizacji pozarządowych
• rekreacyjną – forma oraz proponowana treść powinna przyciągnąć mieszkańców Ursynowa a nawet Warszawy
Przewidywane pośrednie efekty funkcjonowania centrum:
• transformacja świadomości mieszkańców poprzez wykazanie powiązań między przyjaznym Ziemi stylem życia i ekorozwojem miasta a wymiernymi efektami ekonomicznymi
• promocja zdrowego stylu życia, programy efektywnego wykorzystania wody i energii, wstęp do recyklingu
• popularyzowanie informacji o lokalnej problematyce ekologicznej
• integracja środowisk wokół problematyki zrównoważonego rozwoju miasta
• szerokie spopularyzowanie działań proekologicznych podejmowanych na terenie miasta m.in. także poprzez ciągłe utrzymywanie i nawiązywanie kontaktów z instytucjami i organizacjami obejmującymi zakresem swego działania problematykę ochrony środowiska i zrównoważonego rozwoju w kraju i za granicą
• podniesienie kwalifikacji zawodowych nauczycieli poprzez udzielanie pomocy metodyczno-merytorycznej w realizacji treści ekologicznych
• wzmocnienie więzi społecznej ursynowian, przełamanie anonimowości najbliższego otoczenia, stworzenie kręgu ludzi, którzy znają się i chcą ze sobą współpracować dla dobra lokalnej społeczności, oraz spędzać wspólnie czas wolny
Centrum Edukacji Ekologicznej organizować będzie:
• kongresy
• konferencje
• seminaria
• szkolenia
• kursy zawodowe i dokształcające
• promocje-prezentacje firm
• konkursy
• warsztaty
• wystawy
• prelekcje, itp.
Ponadto część zespołu to muzeum natury, tematycznie podzielone na co najmniej 4 grupy – dotyczące globu ale też najbliższych okolic – Lasu Kabackiego, jego fauny, flory..
Warto, wydaje mi się, poświęcić parę słów muzeum w Centrum. Otóż zakładam, że byłoby to muzeum inne niż wszystkie. Nie byłby to ekologiczne i geologiczne eksponaty, suche fakty, zdjęcia..
Byłaby to farma aktywności, gdzie poprzez zabawę dzieci uczyłby się kreatywności i zachęcane byłyby do poznawania czegoś nowego. Należałoby zaprojektować specjalne interaktywne instalacje, gdzie dziecko np. kręcąc gałką spowoduje małe trzęsienie ziemi, gdzie wirtualnie dorzucając śmieci na składowisko spowoduje wirtualna katastrofę ekologiczną. Nieomal każdego dnia można byłoby zmieniać program dodatkowy, przeznaczony głównie dla dzieci. Raz byłoby to lepienie z gliny, raz wykonywanie jakąś prosta, ale ciekawą techniką graficzną pocztówek o tematyce przyrodniczej, raz np. kopiowanie skamieniałości na papierze, wykonywanie ozdób typu naszyjnik z elementów natury typu muszle, kora..
Czasami zajęcia odbywałyby się na otwartej przestrzeni przed budynkiem lub na naturalnym placu zabaw. Tutaj dzieciaki mogłyby zapoznać się z czterema żywiołami – ogień, woda, powietrze i ziemia. Można zorganizować ognisko, przy którym mogłyby posłuchać opowieści o ogniu; oczko wodne, wraz ze strumykiem, które, w małej skali, mogłoby pokazać zasadę działania młyna wodnego, instalację do „wytwarzania wiatru”, także podziemne korytarze do czołgania się i poznania odczuć zwierząt w ich podziemnych jamach..
Oprócz działalności ściśle związanej z profilem /edukacja ekologiczna/ Folwark pomieści w swym programie również: restaurację, kawiarnię, małe centrum handlowe związane z ekologią /księgarnia ekologiczna, kwiaciarnia oraz sklepik ogrodniczy, żywność ekologiczna tzw. slow food/; mała część hotelowa – z myślą głównie o przyjezdnych gościach wykładów, seminariów /np. kadra nauczycielska/ oraz budynek w którym miejsce znalazłyby gołębie /istniejące na terenie, w dość skromnym pawilonie/, kozy, które mogłyby przyciągnąć okoliczne przedszkolaki, oraz Źródełko – woda oligoceńska.
program funkcjonalny, rozwiązania przestrzenne
Zespół Centrum Edukacji Ekologicznej składa się z trzech odrębnych budynków.
Budynek I - nowy budynek Centrum Edukacji
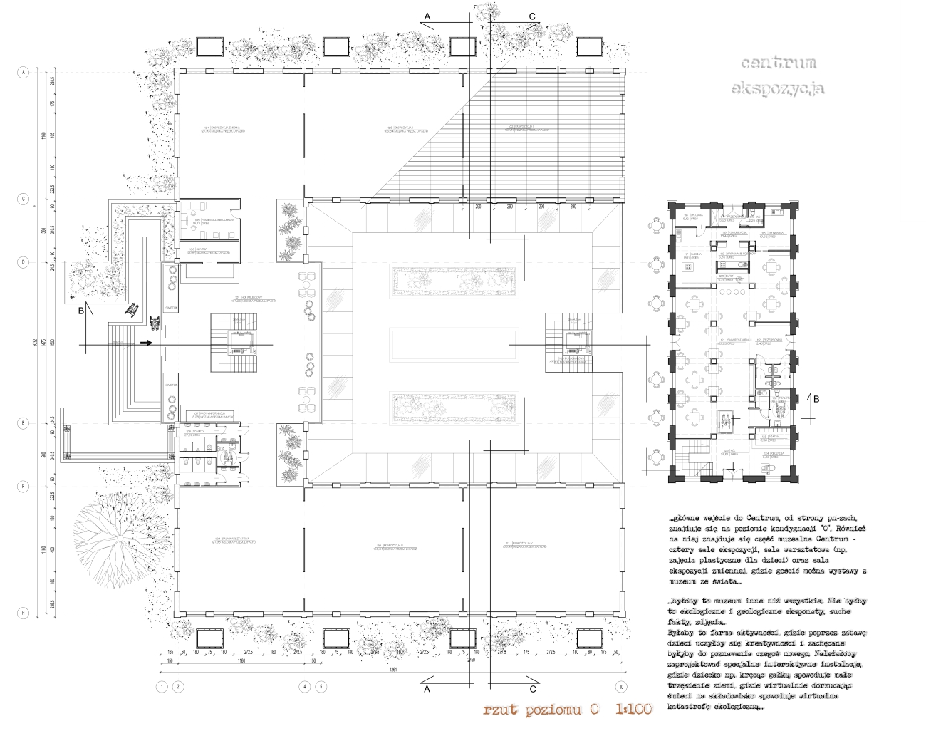
Projektując ten fragment zespołu, założyłam, że architektura tego obiektu musi być tradycyjna, ale zarazem nosić znamiona nowoczesności. A przede wszystkim budynek ten ma jedynie stanowić tło dla zrewaloryzowanego budynku Stajni. Przyjęłam zasadę symetrii, którą również narzuca architektura Stajni. Budynek ma dwie kondygnacje (oznaczone na rysunku „-1” i „0”). Jednak, zgodnie z zapisem Studium, aby nie przekroczyć gabarytów zabudowy historycznej oraz uzyskać oczekiwaną powierzchnię użytkową, kondygnację „-1” umieściłam poniżej poziomu terenu.
Główne wejście do Centrum, od strony pn-zach, znajduje się na poziomie kondygnacji „0”. Również na niej znajduje się część muzealna Centrum – cztery sale ekspozycji, sala warsztatowa (np. zajęcia plastyczne dla dzieci) oraz sala ekspozycji zmiennej, gdzie gościć można wystawy z muzeum ze świata (np. NaturBornholm z Bornholmu). Na poziomie tym znajdują się również pomieszczenia kasy, informacji, szatnia, pomieszczenia ochrony oraz toalety.
Na kondygnacji „-1” znajduje się:
• część edukacyjna: sala wykładowa z zapleczem, pokoje wykładowców, sala konferencyjna z zapleczem, czytelnia oraz czytelnia multimedialna, oraz pokój kominkowy (z myślą o przebywających na kilkudniowym kursie nauczycielach zakwaterowanych w hotelu)
• część handlowa - księgarnia ekologiczna, kwiaciarnia oraz sklepik ogrodniczy, żywność ekologiczna z herbaciarnią
• część administracyjno-biurowa w tym m.in. sekretariat, pokój kierownika, dział gospodarczy oraz pomieszczenia socjalne
• zaplecze techniczne w tym wentylatornia
W strefie środkowej kondygnacji, oprócz komunikacji pionowej, ulokowałam kawiarnię z zapleczem, węzeł sanitarny. W pomieszczeniach w części podziemnej centrum, pozbawionych bezpośredniego dostępu światła dziennego zastosowałam świetliki. Budynek ma kształt litery U, a w części wewnętrznej, odkrytej - częściowo utwardzone patio z odrębną, wolnostojącą klatką schodową umożliwiającą komunikację pionową z patia na poziom terenu. Tam także, na murze oporowym od strony płd-wsch, przeznaczyłam miejsce na sezonowe wystawy np. zdjęć motyli.. Nieomal z każdego pomieszczenia z kondygnacji „-1” można wyjść na patio.
Budynek II
Wykorzystuje rzeźbę terenu. Jego architektura odbiega od architektury pozostałych obiektów, łączy się z nimi jedynie detalami. Budynek jest dwukondygnacyjny. Na kondygnacji dolnej, dostępnej z poziomu ulicy Stryjeńskich, ulokowałam studnię wody oligoceńskiej oraz zaplecze techniczne dla pomieszczeń kondygnacji górnej, a na niej znajduje się przede wszystkim koziarnia obliczona na kilkanaście kóz hodowanych w celach edukacyjnych. W narożniku budynku od strony wschodniej ulokowałam klatkę schodową w formie ściętego walca wykonanego w technologii szkieletowej oraz oszalowanego drewnem. W górnej części walca przewidziałam miejsce na zorganizowanie gołębnika – dla gołębi hodowanych na terenie Folwarku od lat. Zakładam, że obsługą kóz, gołębi zajmowałaby się ta sama osoba. Dla tegoż pracownika przewidziałam małe zaplecze socjalne na kondygnacji dolnej budynku. Na kondygnacji górnej znajduje się również pomieszczenie gospodarcze, które może być wykorzystywane jako zaplecze ogrodnika (kosiarka, łopaty itp.) oraz WC dostępne dla zwiedzających (przystosowane dla niepełnosprawnych). Budynek ten wkomponowany jest w ogrodzenie i ma z nim stanowić całość. Pomieszczenie dla kóz jest otwarte dwustronnie: od strony pn-wsch jest to przeszklona ściana umożliwiająca podgląd kóz w okresie jesienno-zimowym, od płd-zach okna + drzwi na ogrodzony wybieg.
Budynek III - Stajnia
Budynek parterowy z poddaszem użytkowym, pochodzący z początku XIX w.; adaptacja na restaurację oraz część hotelową – pokoje gościnne na poddaszu. Komunikacja pionowa – klatka schodowa + winda dla niepełnosprawnych. Na dole, oprócz funkcji podstawowej, recepcja, szatnia, sanitariaty.









